 |
 |
 |
3-4 Fam. Haus mit TOP Aussicht
|
Objektbeschreibung
|
Das 1969 in massiver und hochwertiger Bauweise erstellte Wohnhaus befindet sich aufgrund ständiger Wartungs- und Instandhaltungsmaßnahmen in einem sehr guten, gepfegten Zustand. Die Aufteilung ist in gewissem Rahmen, mit sehr geringem Aufwand individuell gestaltbar. Momentan sind z.B. die OG-Wohnung und DG-Wohnung zu einer großen traumhaften Maisonette-Whg. mit ca. 190 qm Wohnfläche zusammengelegt. Die Wohnung bietet einen traumhaften Blick über Aldingen, verfügt über 6 Zimmern, 2 Bäder, 2 Balkone und einer sehr großen Küche mit angrenzendem Wasch-bzw. Bügelzimmer. Diese Wohnung lässt sich ohne weiteres wieder in 2 Wohnungen mit ca.105 qm und 83 qm Wohnfläche aufteilen, was auch bereits baurechtlich genehmigt ist. Die 4 Zi-Hochparterre-Whg.mit ca.105 qm Wohnfläche besitzt ebenso einen großzügigen Balkon wie die OG-Whg. Darunter befindet sich eine schöne 2-Zi-Whg. mit eigenem Hauseingang und ca. 53 qm Wohnfläche.
|
 |
|
|
|
|
|
|
Bildimpressionen
|
|
|
|
Ausstattung
|
-die Beheizung erfolgt über eine Öl-Zentralheizung mit kombinierter Warmwasseraufbereitung - Parkett-, Fliesen-, Laminat-, Korkböden - teilweise neue Kunststoffenster - Tageslichtbad - getrennte WC?s - Einliegerwohnung mit eigenem Hauseingang - direkter Zugang von großer Maisonette-Whg. in den Garten
|
|
|
|
|
|
Lage
|
Das zum Verkauf stehende Anwesen befindet sich in bevorzugter Wohnlage in einem gewachsenen Wohngebiet von Aldingen. Eine leichte Hanglage ermöglicht dem Bewohner einen wunderschönen Ausblick über Aldingen. Das Haus befindet sich in einer verkehrsberuhigten und damit kinderfreundlichen Anliegerstrasse. Und doch liegt das Haus sehr zentral, so daß alle Dinge des " täglichen Lebens " zu Fuß zu erledigen sind. So sind z.B. Schulen, Kindergarten, Ärzte, Bäcker, Metzger und Supermärkte nur wenige Gehminuten entfernt. Auch die Bus- und Stadtbahnhaltestelle sind schnell zu Fuß zu erreichen und bieten eine hervorragende Anbindung an das öffentliche Verkehrsnetz, Sie sind in kürzester Zeit (auch ohne Pkw) in Ludwigsburg, Canstatt oder Stuttgart. Heute immer wichtiger, auch ohne Auto mobil zu sein.
|
|
|
|
|
|
Sonstiges
|
IHRE VORTEILE AUF EINEN BLICK:
1.) bevorzugte, ruhige kinderfreundliche Wohnlage 2.) sehr guter und gepflegter Objektzustand 3.) 2 Garagen und 3 Stellplätze im Kaufpreis enthalten (über 30.000,- Euro) 4.) große Räume 5.) 3 schöne Balkone mit Ausblick 6.) werthaltige Kapitalanlage 7.) provisionsfreier Erwerb direkt vom Eigentümer 8.) Dach erst vor ca. 10 Jahren komplett neu eingedeckt mit Dachisolierung / Kupferrinnen 9.) teilw. Elektrik auch erneuert 10.) Dez.2009 Öltank-Innenhaut erneuert mit 10 Jahren Garantie 11.) Wartungsfreier Wasserfilter zur Schonung der Wasserrohre 12.) exklusive Wohnungsausstattungen, Luxusbad, elektr. Rolläden, Parkettböden usw. 13.) 2003 neue Ölzentralheizung 14.) schöner, angelegter Garten mit Gartenhäuschen 15.) Wasseruhren, Elektrik alles getrennt und den jeweiligen Wohnungen zugeordnet.
|
|
|
|
|
|
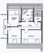
Grundrisse und Lagepläne
|
|
|
|
|
|
|
Objekt in Google Maps
|
|
|
|
Ihre Anfrage an uns
|
|
|
|
(C) 2010 - Dörr Immobilien |
|
Diese Seite drucken
|